サンディエゴタウンがゆく!
-
留学センター - A.J.I. LLCよりコラムが届きました ~ アメリカの【コミュニティーカレッジ】があなたの人生の分岐点になる!?「アメリカの学校って円安の影響で高いよね?」と思われがちですが、実は、日本の大学とあまり値段は変わらないです。 大体、1学期$6000前後が予想されます。 参考:コミカレの費用に関するブログ...続きを読む
-
サンディエゴ:おすすめスイーツショップ!Yiko Yiko今日はClairemont Mesa Blvd沿いにあるカフェをご紹介! ひと口お餅が話題だという噂を聞き・・・ この日は抹茶味のひと口餅と、黒胡麻ケーキを買ってみました! 抹茶餅には、ほんの...続きを読む
-
サンディエゴ:日系スーパー・アジアスーパーチラシまとめ今週の日系スーパー&アジアスーパーのチラシです!今週もお得な商品をゲットしましょう✨アジアスーパーのチラシはこちらから↓↓ その他アジアスーパーのチラシはこちらから 店舗名の中からサンディエゴを選...続きを読む
-
ロサンゼルス近郊編 お得に買い物!日系スーパー&アジアスーパーチラシまとめ今週の日系スーパー&アジアスーパーのチラシです!今週もお得な商品をゲットしましょう✨アジアスーパーのチラシはこちらから↓↓アジアスーパーのチラシはこちらから 東京セントラル ↓ ・Tokyoセント...続きを読む
クラシファイド Classified
カテゴリーリスト
探してます
0人が登録中
この投稿は終了しました。
月1000ドル、一人部屋、UTC周辺 Regents La Jolla

-
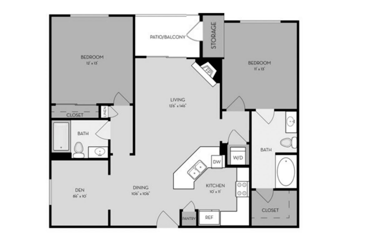
部屋の間取りです。掲載している場所は左下のdenになります。(部屋のドア、窓もあります)
拡大する
UCSD生です。引っ越しをするので、私が空ける部屋に住んでいただける方を探しています。
Regents La Jolla(UTC周辺)の2BD/2BA + 書斎(den) の部屋の書斎になります。
書斎といえど、UCSDの寮のワンルームと広さは大差ありません。
月1000ドル(光熱費等別)
お部屋にキッチン、冷蔵庫等は勿論、洗濯機・乾燥機もあります。
ベッド、机、椅子などもありますので、そちらをお譲りします。
マンスリーで契約を更新する形でルームメイト2人と契約しているので、契約終了時期はフレキシブルに決めていただけます。
サンディエゴタウンユーザーからの投稿
ID 57009
Regents La Jolla(UTC周辺)の2BD/2BA + 書斎(den) の部屋の書斎になります。
書斎といえど、UCSDの寮のワンルームと広さは大差ありません。
月1000ドル(光熱費等別)
お部屋にキッチン、冷蔵庫等は勿論、洗濯機・乾燥機もあります。
ベッド、机、椅子などもありますので、そちらをお譲りします。
マンスリーで契約を更新する形でルームメイト2人と契約しているので、契約終了時期はフレキシブルに決めていただけます。
$ 1,000.00 (詳細は記事参照)
10/18/25まで
10/18/25

投稿者:LanikaiHI1
こんな投稿にも興味ありませんか?
-
探してます
La Mesa お部屋空いています。
$1,300.00 -
お仕事探し
【募集】サーバー
パート・アルバイト -
売ります/あげます
Soda Stream Fizzi
$40.00 -
タウン情報
車の売買ならアクセルモータース !車のお悩み・お気軽にお問い合わせください!
(58) -
探してます
マスタールーム
$1,000.00 -
お仕事探し
税務アドミニストレーター
正社員 -
売ります/あげます
3〜6年生 英語の本19冊➕無料新品パズルブックまとめて
$4.00 -
プレゼント
Shaved Ice Ko-Li Bar $10 お食事券
-
探してます
UCSD の近く マスターベッドルームお貸します。
$1,500.00 -
お仕事探し
プロジェクトマネジメント アシスタント
パート・アルバイト -
売ります/あげます
O-cedar mop
$5.00 -
プレゼント
梅光軒 Baikohken Ramen $10 お食事券
-
探してます
プライベートマスタールーム パノラミックビューコンド Shadowridge
$750.00 -
お仕事探し
Accountant
正社員 -
売ります/あげます
Face mask
$5.00 -
プレゼント
麵屋うるとら $10 お食事券
-
売ります/あげます
クイックルワイパー
$5.00 -
お仕事探し
アシスタントマネージャー
正社員 -
売ります/あげます
マグネット式 ラップ2段とペーパーホルダー
$5.00 -
プレゼント
ラキラキ ラーメン&つけ麺 - RAKIRAKI Ramen and Tsukemen $20
-
売ります/あげます
ワインラック1本用
$5.00 -
お仕事探し
【急募】サーバー/キッチンサポート
パート・アルバイト -
売ります/あげます
Men's Lazer Stacked Cargo Jogger Pants
$7.00 -
プレゼント
A.J.I LLC 無料ゴルフレッスン券(30分 2回分まで)2名様分
-
売ります/あげます
キャスター付き キューブボックス
$15.00 -
お仕事探し
アカウント・エグゼクティブ|大手日系物流企業
正社員 -
売ります/あげます
【売却済み】歯磨きシート
$10.00 -
プレゼント
から味ラーメン $10 お食事券

